Lake Retreat | Sleeps 18 | Beach & Lake Access

South Haven, MI, United States
16
6
3.5

About

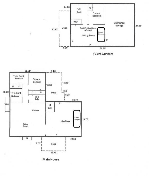
This is a listing for two rental units that are right next to each other. Together they sleep a total of 18 people. •Walk to Lake Michigan’s shoreline •Enjoy private beach access + outdoor fun (fire pit, hammock, yard games, bikes) •Explore nearby parks, trails, wineries, and South Haven shops Unit 1-The Blue Shore Cottage (sleeps 12) •A main house and guest house with 4 bedrooms and 2 queen sleeper sofas •Spacious seating/dining Unit 2-Sunset Dune Cabin (sleeps 6) •2 story with 3 bedrooms

Good to know

Other Details to Note

Please note that upon booking you will be asked to review our rental agreement and sign. Please see the rental agreement below: RENTAL AGREEMENT This Lease is entered into on the date hereof, by and between (“Owner”) and (“Renter”) for the property located in and listed as (“Property”).  TERM: The term of the Lease shall begin on the arrival date of and end on the departure date of for . The property will be ready for occupancy no earlier than on the arrival date and must be vacated no later than on the departure date. The term of the Lease may be reduced or extended upon mutual consent, following payment of any additional fees agreed between the parties, and confirmed in writing by the Owner. RENT: The total rent is , payable at the time of booking. LIMITED OCCUPANCY: Occupancy is limited to the number of guests specified on the booking: .  If the Owner concludes that this policy has been breached, the Owner reserves the right to expel the entire party with no refund. NON-DISTURBANCE CLAUSE: Renter and their guests shall not disturb, annoy, endanger (fireworks), or create inconvenience for neighbors nor use the premises for any unlawful purposes. You agree to keep outside noise to a minimum between the hours of 11:00 pm and 6:00 am.  You and all other guests agree to abide by all applicable parking restrictions and limitations. CARE OF PREMISES/DAMAGES: NO UNAUTHORIZED PETS ALLOWED. NO SMOKING, VAPING OR E-CIGARETTES PERMITTED IN HOUSE. Automatic eviction plus forfeit of any deposit and rent if violated. Renter agrees to pay the Owner for any damages to furnishings or household items that occur as a result of Renter’s occupancy. This will include payment of any additional cleaning charges over $100.00 incurred due to Renter’s occupancy. To prevent theft of, or damage to, the Renter's personal property and that of the Property, Renter agrees to close and lock doors and windows when not present at the Property, including upon check-out. OWNERS RIGHTS: Renter agrees that if the conditions and limitations set forth herein are not met, Owner shall have the right to cancel this agreement and may enter the Property, either by statutory proceedings or by force, to inspect the Property and ensure that Renter has vacated the Property. All monies paid by Renter shall be forfeited as liquidated damages. INDEMNITY CLAUSE: Renter hereby agrees to Indemnify and hold the Owner harmless from any and all claims, including those of third parties, arising out of or in any way related to Renter’s use of Property or the items of personal property provided therein.  Renter assumes all risk of injury or other losses relating to any recreational activities and will hold Owner harmless with respect thereto. NO SUBLETTING: Renter may not sublet or assign this Lease for all or any part of the premises without the prior written consent of the Owner. NO PERMANENT RESIDENCE: Renter's use of the Property is on a temporary, short-term, and transient basis only. The Property is not, and will not be, the Renter's, or any guest's, permanent residence. REPAIRS AND MAINTENANCE:  The Property is rented with the Owner’s furniture and household furnishings. The owner shall not be responsible for providing additional furnishings or equipment not presently available in the Property.  Renter will report any maintenance issues immediately to the Owner. The Owner will make every effort to repair and/or replace any equipment that is not working properly but cannot guarantee that all equipment is in good operating order at all times and no rate adjustments or refund will be made for equipment or appliance failures. CANCELLATIONS: Renter may cancel at any time. The Owner will return any refundable amount, if applicable, according to the reservation's cancellation policy. HOUSE RULES: Pets and events are not allowed on the property. No Smoking, vaping or e-cigarettes are allowed inside of the dwellings. Quiet Hours are 11pm-6am. Maximum number of guests is limited to 18. Minimal rental age is 23 years old. COMPLIANCE WITH LAWS AND ORDIANCES: Guest agrees to comply with all local, city, township, county, and state ordinances, rules, and regulations applicable to short-term rentals. Please see Good Neighbor Policy Below. Failure to comply may result in immediate termination of the stay without refund and forfeiture of the security deposit., including but not limited to: NOISE – South Haven Township Ordinance # 74 -From 11:00 p.m. to 6:00 a.m. the acceptable noise level is conversational level sound -Decibel sound restrictions include both private and public areas FIREWORKS – State of Michigan MCL 256 -Fireworks are restricted to national holidays and the day before and after the holiday -Fireworks on the day before and after the holiday are not allowed from 11 p.m. to 8 a.m. -Person lighting fireworks is responsible for where the fireworks land. FIRES – Fires must be attended at all times and are only allowed within bordered burn pit area. Only seasoned wood maybe burned within the pit. PARKING -Park in designated spots on the property -Parking must not impede the passage of any emergency vehicle on the roadway PETS -Pets are not allowed at this rental. Per the township ordinance the township oridnance policy on pets must be posted. Pets must be on a leash when off your property -Barking dogs are a violation of the noise ordinance -Picking up after your dogs on walks is required VEHICLES – Various State Laws -ATVs are not allowed on public beaches or county roads in the township -Golf Carts are not allowed on county roads in the township -“Low-speed” vehicles require tags and insurance -Minors cannot drive low-speed vehicles on county roads -Jet Skis (PWC) use is restricted to 200 feet or more from the shoreline – minimum age is 14 with a boating safety certificate and other restrictions (Michigan Boating Laws) COURTEOUS AND COMMON SENSE REQUESTS (non-legislated) -This is a residential neighborhood, please be considerate of your neighbors -Stay off the bluff to protect the environment – follow all other rules at public beaches -All swimmers should wear life vests – on rough water days please stay on the beach TRASH -Place all trash in covered containers with closed lids by 8 a.m. on the day of the pick-up at the specified pick-up location By signing this Lease, you acknowledge that you will comply with the terms of this agreement, and each party assumes the responsibility for the obligations set forth herein. Renter acknowledges receipt of the House Rules.  Renter acknowledges that they have read, accept, and agree to the terms set forth.

Availability

What this place offers

Amenities

Common

  • Air conditioning
  • Cleaning products
  • Cooking basics Pots and pans, oil, salt and pepper
  • Dishes and silverware
  • Dryer In the building, free or for a fee
  • Hair dryer
  • Heating Central heating or a heater in the listing
  • Kitchen Space where guests can cook their own meals
  • Dedicated workspace
  • TV
  • Washing Machine In the building, free or for a fee
  • Wifi

Bathroom

  • Bathtub
  • Body soap
  • Conditioner
  • Hot Water
  • Shampoo

Bedroom and laundry

  • Bed linens
  • Extra pillows and blankets
  • Hangers
  • Iron
  • Clothing storage

Common

  • Air conditioning
  • Cleaning products
  • Cooking basics Pots and pans, oil, salt and pepper
  • Dishes and silverware
  • Dryer In the building, free or for a fee
  • Hair dryer
  • Heating Central heating or a heater in the listing
  • Kitchen Space where guests can cook their own meals
  • Dedicated workspace
  • TV
  • Washing Machine In the building, free or for a fee
  • Wifi

Bathroom

  • Bathtub
  • Body soap
  • Conditioner
  • Hot Water
  • Shampoo

Bedroom and laundry

  • Bed linens
  • Extra pillows and blankets
  • Hangers
  • Iron
  • Clothing storage

Entertainment

  • Ethernet connection

Family

  • Baby monitor
  • Board games
  • Children's books and toys
  • Children's tableware
  • Pack 'n Play/travel crib

Heating and cooling

  • Ceiling fan
  • Indoor fireplace

Home safety

  • Carbon monoxide detector
  • Fire extinguisher
  • First aid kit
  • Smoke detector

Kitchen and dining

  • Baking sheet
  • Barbecue utensils
  • Blender
  • Coffee
  • Coffee maker
  • Dining table
  • Dishwasher
  • Freezer
  • Hot water kettle
  • Microwave
  • Mini Fridge
  • Oven
  • Refrigerator
  • Stove
  • Toaster
  • Wine glasses

Location features

  • Beach access
  • Lake access
  • Laundromat nearby

Outdoors

  • BBQ grill
  • Beach essentials Beach towels, umbrella, beach blanket, snorkeling gear
  • Fire pit
  • Garden or backyard
  • Outdoor seating

Parking and facilities

  • Free parking on premises

House Rules

Minimum Rental Age 23 No Pets Allowed No Events Permitted

Accessibility

Neighborhood

Guest Access

•Fully Stocked Kitchen •Fire Pit •Hammock •Outdoor Seating •Yardgames (yard dice, corn hole, giant connect 4) •Bicycles and Baby Trailer •Outdoor Kids Toys •Dune/Beach Access (note steep dune hike to private beach) •Beach Chairs •Board Games and Puzzles •Outdoor Dining Area •Bath and Bed Linens •Children Amenities (Pack and Play and Stroller)

Find us

Sorry we're unable to show you the location for this property

Approximate location. Full address will be provided on booking.